TL;DR Bemusterung ist Arbeit: Vergiss die Romantik, hier regiert die Technik. Kostenfalle: Plant Puffer ein! Bei uns waren es schlappe 15k Euro extra für „Kleinkram“. Bad-Revolution: Die beste Idee kommt oft erst, wenn der Planer schon Feierabend machen will (und meistens von der Ehefrau). Geduldsprobe: Werksplanung dauert. Und dauert. Und kostet am Ende wegen Schneelast doch noch extra.
So nach dem leidigen Küchenthema kommt jetzt noch einmal ein kleiner Roman, diesmal geht es von der Vorbemusterung über die Bemusterung zur Werksplanung. Aber vorher…
Auf die lange Bank
Okay, Asche auf mein Haupt. Die Bemusterung ist nun schon ein dreiviertel Jahr her. Ein. Dreiviertel. Jahr. Oliver und Elena halten mich zwar ordentlich auf Trab (frischgebackener Zweifach-Papa und so), aber sind wir ehrlich: Das ist nur die halbe Wahrheit. Die ganze Wahrheit ist: Ich hatte schlicht keinen Bock. Das Thema Bemusterung und Werksplanung ist zäh wie Kaugummi, technisch trocken und zieht sich über einen Zeitraum, bei dem man schon mal vergessen kann, dass man eigentlich ein Haus baut. Aber Jammern hilft nix – wir wollen ja fertig werden. Also, Vorhang auf für das erfreulich Unerfreuliche.
B wie begrenztes Budget
Erinnert ihr euch an die Vorbemusterung? Da wir ja strebsame Bauherren sind, hatten wir die bei Keitel schon vor Vertragsabschluss erledigt. Damals führte uns der Chef persönlich durchs Bemusterungshaus, weil unser Verkäufer verhindert war.
Das Keitel-Bemusterungshaus: Zweieinhalb Etagen voller Möglichkeiten – oder auch nicht. Wer sich gerne zwischen 150 verschiedenen Türgriffen entscheidet, ist hier falsch. Wer aber froh ist, wenn die Auswahl auf 15 Stück begrenzt ist, um keine Entscheidungsparalyse zu bekommen (so wie wir), der fühlt sich pudelwohl.
Sanitär ist outsourced: Keitel macht das nicht selbst, sondern schickt einen zum „Eisenfischer“ um die Ecke. Da gibt es dann die volle Dröhnung an Fliesen und Badmöbeln.
Kosten-Reality-Check: Der Keitel-Standard ist solide, aber sagen wir mal: „Holzklasse“. Wer es schick will, sollte direkt 10.000 bis 20.000 Euro Puffer einplanen. Spoiler: Wir werden den Puffer brauchen.
Mai 2025: Der Ernst des Lebens
Fast Forward in den Mai ’25. Der Bauantrag ging durch wie Butter (ein Wunder!), und wir standen motiviert auf der Matte.
Taktischer Schachzug: Wir haben die Badbemusterung auf einen extra Tag gelegt. Beste. Entscheidung. Ever. So hatten wir zwei volle Tage für den Rest bei Keitel.
Wer jetzt denkt, Bemusterung sei wie in diesen Wohn-Shows, wo man bei einem Glas Sekt stundenlang Farbfächer an die Wand hält: Pustekuchen!
Technik, Technik, Technik: In welche Richtung öffnet die Tür? Wo verläuft das Kabel für den elektrischen Schnickschnack? Welches Glas kommt in welches Fenster?
Verpflegung: Ein kleiner Dämpfer am Rande – die belegten Brötchen bei der Werksführung damals waren besser. Man merkt: Die Unterschrift ist gesetzt, der „Honig-ums-Maul-schmier“-Modus ist vorbei. Jetzt wird gearbeitet.
Wir haben uns durchgekämpft. Ein Highlight (im negativen Sinne) war die Fassade.
Farbwahl: Wir wollten kein Standard-Weiß. Nach langem Hin und Her im Konfigurator wurde es STO 16044 (ein Beige-Ton, von dem wir hoffen, dass er in echt so aussieht wie auf dem Bildschirm).
Die Blech-Falle: Keitel wollte uns ein Folienverbundblech zum Schutz der Fassade verkaufen. Kostenpunkt: Aberwitzige 380 Euro pro laufendem Meter. Plus 200 Euro, wenn es hübsch aussehen soll (Aluverblendung). Wir haben dankend abgelehnt. Man muss ja nicht jeden Quatsch mitmachen.

Eine Woche später kam die Rechnung. Oder wie man im Fachjargon sagt: Die Mehr- und Minderkostenaufstellung.
Das Ergebnis: Rund 15.000 Euro Mehrkosten. Autsch. Hier mal für die Excel-Nerds unter euch (ich weiß, ihr seid da draußen) die Highlights der Preistreiber:
- Kranversetzung Garage: 2.600 €
- Erhöhung Garage: 2.700 €
- Windbrett (blechverkleidet): 2.200 €
- Balkon (verputzt): 1.800 €
- Garagenfarbe (Hausfarbton): 1.700 €
- Garagentor: 1.500 €
Wir hatten zwar akribisch kalkuliert, aber diese Summe tat trotzdem weh. Es ist wie beim Zahnarzt: Man weiß, es muss sein, aber man freut sich nicht über die Rechnung.
Pittiplatsch
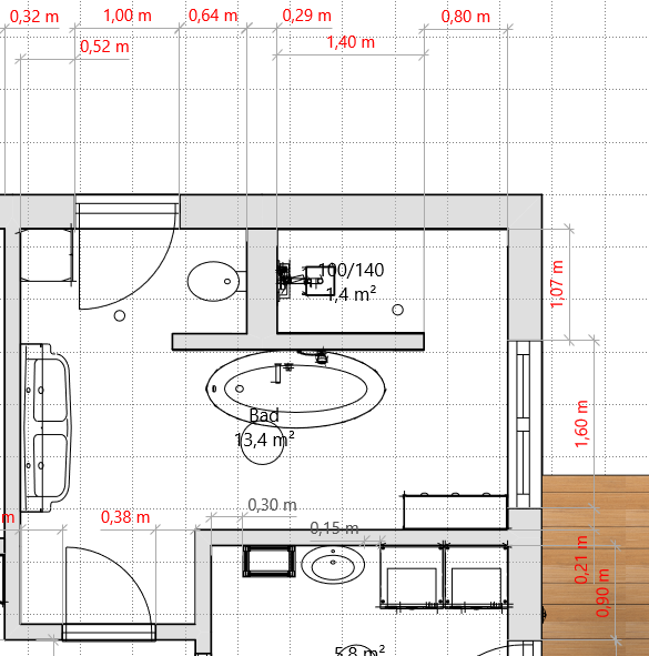
Eigentlich war alles fix. Eigentlich. Aber mit dem Bad war ich immer noch nicht glücklich. Und da durch die Vormauerungen eh Mehrkosten im Raum standen, habe ich den „Gordischen Badknoten“ noch einmal aufgeschnürt.
Ich habe zwei Varianten in den Reddit-Ring geworfen:

Gewonnen hat: Keine davon.
Die Siegerin: Option Nummer 3. Auf Drängen meiner Frau habe ich noch eine weitere Version durchgespielt. Und was soll ich sagen? Sie hatte recht (lasst sie das bloß nicht lesen).
Um sicherzugehen, dass man sich da drin nicht wie in einer Sardinenbüchse fühlt, habe ich das Ganze visualisiert – inklusive Menschen von oben, um die Durchgangsbreiten zu checken:




Das Fazit: Bessere Aufteilung, und am Ende haben wir durch die Änderung sogar Geld gespart. Die Dame von der Bemusterung tat uns zwar leid, weil sie alles nochmal umwerfen musste, aber hey: Wir müssen da drin wohnen, nicht sie.
Werksplanung: Das große Warten
Nachdem wir die Mehrkosten geschluckt und unterschrieben hatten, hieß es: Warten.
Aussage Keitel: 4 bis 12 Wochen. Realität: Fast die vollen 12 Wochen.
Das war nach dem Warten auf den ersten Architektenentwurf die quälendste Zeit des ganzen Projekts. Man sitzt da und hofft, dass nicht der Anruf kommt: „Das geht so alles technisch nicht.“
Aber wir hatten Glück (oder Keitel hat gut taktiert): Fast alles ging durch. Einzige Absage: Die Tür unter der Treppe darf nicht nach innen öffnen. Geschenkt.
Wir haben den Plan dann nochmal mit der Lupe geprüft. Tatsächlich hatten sich beim Übertrag vom Entwurf unserer Architektin Frau Forster zur Keitel-Werksplanung kleine Fehler eingeschlichen – hier ein Fenster 5 cm zu weit links, da eins zu weit rechts. Nichts Wildes, aber gut, dass wir nachgemessen haben.
Die Kröte zum Schluss: Aktuell schlagen wir uns noch mit Kleinigkeiten herum („Können wir das Rohr 50 cm nach links schieben?“). Aber eine bittere Pille gab es noch: Wegen des Splitgeräts der Wärmepumpe und der örtlichen Schneelast musste das Garagendach verstärkt werden. Kostenpunkt: 2.000 Euro extra. Eine Kröte, zweifelsohne. Aber wenn das die größte bleibt, die wir schlucken müssen, dann Mahlzeit.
Glückskeks
Gibt es zum Schluss wieder eine Weisheit? Ja, und die tut mir selbst am meisten weh:
„Aufgeschoben ist nicht aufgehoben – es wird nur teurer und nerviger.“
Lass den Kram nicht liegen. Egal ob Blogbeiträge oder Entscheidungen für die Baustelle. Irgendwann holen sie dich ein, und meistens haben sie dann eine Rechnung dabei.

